Architecture
Interior & Exhibition
Painting
More
About
portfolio
Architecture
Interior & Exhibition
Painting
More
About
AL BAR QUADRONNO
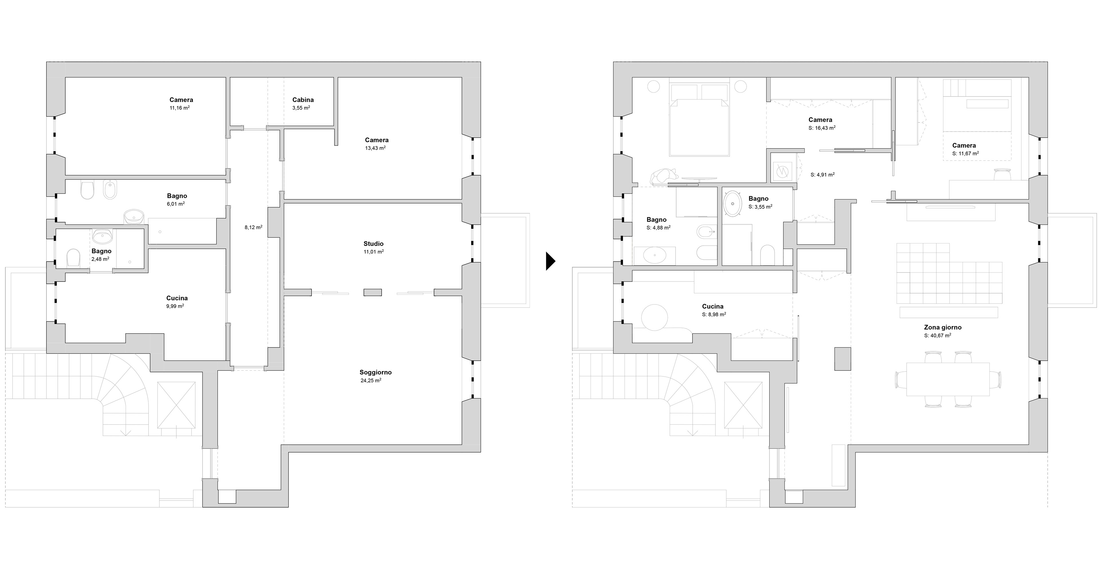
Quadronno | Interior renovation
| Milan
| 2024
Private residence
(95 sqm)
Project:
Giulia Laura Suardi, Martina Menconi
Ph:
Simone Furiosi
More:
https://www.ebanisteriakora.com/
https://www.simonefuriosi.com/
https://www.menconicucine.com/
↑
Back to Top